SIMONE CECCATO

3D VISUAL CGI
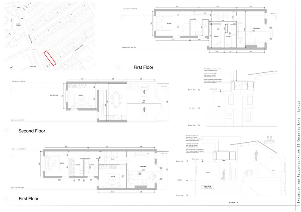
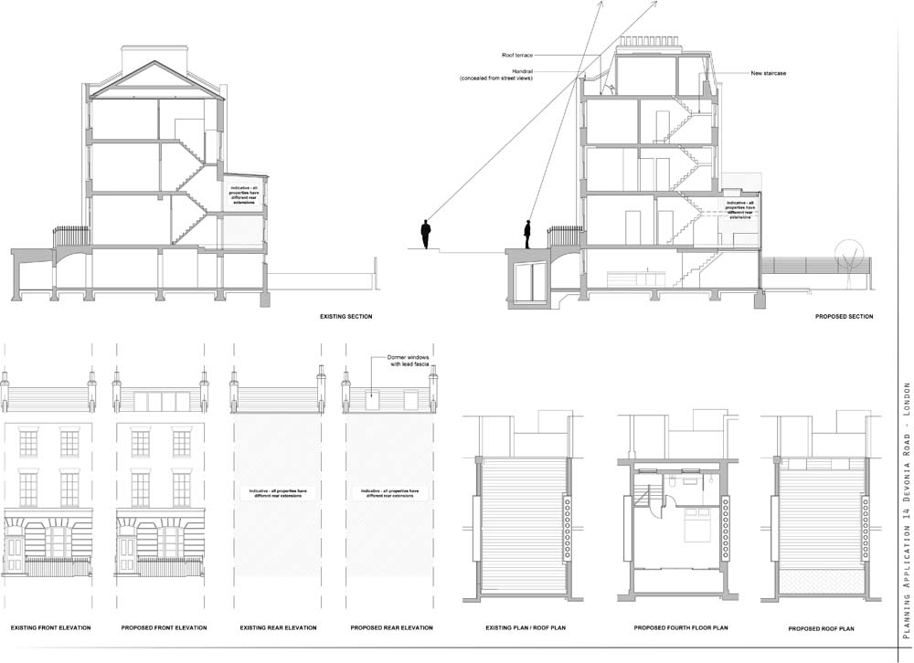
BUILDING REGULATION
UNIVERSITY